The plasterboard flush-mounted aluminium LED profiles can be recessed into the 12.5mm drywall on the ceiling and wall. You can recess into the wall or ceiling for indoor linear lighting projects. Flush mounting LED profiles are made of 6063-T5 extruded aluminum material with anodized surface treatment, anti-oxidation resistance, and a longer lifespan than similar products. 3 colors are available: white, silver, and black. The standard length is 1M and 2M, cuttable and custom lengths are available, the inner width is 10.5mm, and it allows the maximum width of LED in profiles to be 10mm. It is easy to install the LED lights on the aluminum channel base, and they can work as a heat sink for better heat dissipation. Recommend installing the COB LED strip 24V, with no visible light dots and dark areas, to create seamless linear lighting for indoor decoration. The end caps with wire holes are included, and they are easy to connect to the 24-Volt LED drivers to light up. Only one type of diffuser is available, the PC diffused cover, which is made of imported brand material, is anti-yellowing, has perfect light distribution, and has soft light output.
Specifications:
- Model: ALP068-R4
- Material: 6063-T5 Extruded Aluminum
- Surface Treatment: Anodized
- Colors: White, Silver(Default), Black
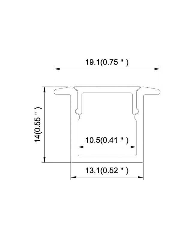
- Size: 19.1*14mm(W*H)
- Standard Length: 1M
- Other Lengths Available: 1.5M, 2M, 2.5M, 3M, And Max 6M
- Custom Length Available: YES
- Diffusers: PC Diffused Cover
- Inner Width: 10.5mm
- Max Width Of LED Strips: 10mm
- Max Power: 12W/M
- Beam Angle: 100°
- Tolerance: ±1%
- IP Rate: IP20 Non-waterproof
- End Caps With Wires Included
- Installation: Recessed
- 5 Years Warranty
Includes:
1 * Plaster In LED Profile With Diffuser
End Caps(With And Without Wire Hole)


+
+
+
+



